JUTA07 – ŽIRECKÁ PODSTRÁŇ
| Název stavby: | SO38 – VÝROBNÍ HALA |
| Místo stavby: | Dvůr Králové nad Labem – Žirecká Podstráň |
| Zpracování: | 2025 |
| Zastavěná plocha: | 4 420 m2 |
| Obestavěný prostor: | 57 100 m3 |
| Stupeň: |
Změna stavba před dokončením |
JUTA01 – DVŮR KRÁLOVÉ NAD LABEM
| Název stavby: | STAVEBNÍ ÚPRAVY SO13 – II.ETAPA ČÁST A ZASTŘEŠENÍ EXPEDICE |
| Místo stavby: | Dvůr Králové nad Labem |
| Zpracování: | 2025 |
| Zastavěná plocha: | 550 m2 |
| Obestavěný prostor: | 4 950 m3 |
| Stupeň: | Změna stavba před dokončením Autorský dozor |
ALUFRONT
| Název stavby: | FVE JOSEFOV BEAS 2,184MWP |
| Místo stavby: | Jaroměř – Josefov |
| Zpracování: | 2025 |
| Výkon FVE: | 2,184 MWp |
| Příslušenství: |
Trafostanice 2000kVA 35/0,4 kV, Trafostanice 2000kVA 35/0,8 kV, |
| Stupeň: | Dokumentace pro povolení stavby |
OBEC DOBRÉ
| Název stavby: | BYTOVÝ DŮM KAMENICE |
| Místo stavby: | Kamenice |
| Zpracování: | 2025 |
| Zastavěná plocha: | 625 m2 |
| Obestavěný prostor: | 5 270 m3 |
| Stupeň: | Dokumentace pro povolení stavby |
JUTA04 JAROMĚŘ
| Název stavby: | SO27 – PŘÍSTAVBA SKLADOVÉ HALY Č.3 |
| Místo stavby: | Jaroměř |
| Zpracování: | 2025 |
| Zastavěná plocha: | 2 000 m2 |
| Obestavěný prostor: | 25 000 m3 |
| Stupeň: |
Dokumentace pro povolení stavby |
JUTA07 – ŽIRECKÁ PODSTRÁŇ
| Název stavby: | VESTAVBA TRAFOSTANICE TS6 35/0,4 KV, 1X1600 KVA |
| Místo stavby: | Dvůr Králové nad Labem – Žirecká Podstráň |
| Zpracování: | 2025 |
| Zastavěná plocha: | 50 m2 |
| Obestavěný prostor: | 200 m3 |
| Stupeň: | Dokumentace pro povolení stavby Dokumentace pro provedení stavby Realizace stavby |
ALUFRONT
| Název stavby: | BATERIOVÉ ÚLOŽIŠTĚ STRÁŽNICE |
| Místo stavby: | Strážnice |
| Zpracování: | 2025 |
|
Kapacita úložiště: |
4,39 MWh |
| Stupeň: | Dokumentace pro povolení stavby |
MĚSTO JAROMĚŘ
| Název stavby: | REKONSTRUKCE ZÁZEMÍ PLAVECKÉHO AREÁLU JAROMĚŘI |
| Místo stavby: | Jaroměř |
| Zpracování: | 2025 |
| Zastavěná plocha: | 600 m2 |
| Obestavěný prostor: | 3 200 m3 |
| Stupeň: |
Dokumentace pro odstranění stavby |
UNION ARCH spol s.r.o.
| Název stavby: | SENIOR RESORT 2020 – NYMBURK |
| Místo stavby: | Nymburk |
| Zpracování: | 2024 |
| Zastavěná plocha: | 6 300 m2 |
| Obestavěný prostor: | 85 730 m3 |
| Stupeň: | Dokumentace pro vydání územního rozhodnutí |
JUTA07 – Žirecká podstráň
| Název stavby: | SO38 – SKLADOVÁ HALA |
| Místo stavby: | Dvůr Králové nad Labem – Žirecká Podstráň |
| Zpracování: | 2024 |
| Zastavěná plocha: | 4 420m2 |
| Obestavěný prostor: | 57 100 m3 |
| Stupeň: | Dokumentace pro vydání společného povolení stavby Dokumentace pro provedení stavby |
JUTA A.S.
| Název stavby: | odstranění objektu na st.p.č. 1980 |
| Místo stavby: | Dvůr Králové nad Labem |
| Zpracování: | 2024 |
| Zastavěná plocha: | 175 m2 |
| Obestavěný prostor: | 1 005 m3 |
| Stupeň: | Dokumentace pro povolení odstranění stavby |
JUTA01 – DVŮR KRÁLOVÉ NAD LABEM
| Název stavby: | STAVEBNÍ ÚPRAVY SO13 – II.ETAPA ČÁST A ZASTŘEŠENÍ EXPEDICE |
| Místo stavby: | Dvůr Králové nad Labem |
| Zpracování: | 2024 |
| Zastavěná plocha: | 550 m2 |
| Obestavěný prostor: | 4 950 m3 |
| Stupeň: | Dokumentace pro provedení stavby |
DELAUDA S.R.O.
| Název stavby: | SO05 – sklad biomasy v elektrárně Dětmarovice |
| Místo stavby: | Dětmarovice |
| Zpracování: | 2024 |
| Zastavěná plocha: | 310 m2 |
| Obestavěný prostor: | 6 300 m3 |
| Stupeň: | Dokumentace pro vydání společného povolení stavby Dokumentace pro provedení stavby |
FARMET OFT ESTATE S.R.O.
| Název stavby: |
PŘEOŽKA STL PLYNOVODU |
| Místo stavby: | Česká Skalice |
| Zpracování: | 2024 |
| Délka přeložky: | 390 m |
| Stupeň: | Dokumentace pro vydání rozhodnutí o změně využití území a ohlášení terénních úprav |
FARMET OFT ESTATE S.R.O.
| Název stavby: |
terénní úpravy pro areál jih |
| Místo stavby: | Česká Skalice |
| Zpracování: | 2024 |
| Zastavěná plocha: | 20 100 m2 |
| Stupeň: | Dokumentace pro vydání rozhodnutí o změně využití území a ohlášení terénních úprav |
MĚSTO JAROMĚŘ
| Název stavby: |
Pevnost bez hranic – zvýšení turistické atraktivnosti pevností Kladsko a Josefov |
| Místo stavby: | Jaroměř – Josefov |
| Zpracování: | 2023 |
| Zastavěná plocha: | 930 m2 |
| Obestavěný prostor: | 12 605 m3 |
| Stupeň: | Dokumentace pro vydání společného povolení stavby Dokumentace pro realizaci stavby |
OBEC DOBRÉ
| Název stavby: | ZATEPLENÍ BUDOVY MŠ |
| Místo stavby: | Dobré |
| Zpracování: | 2023 |
| Zastavěná plocha: | 675 m2 |
| Obestavěný prostor: | 3 790 m3 |
| Stupeň: | Dokumentace pro vydání společného povolení stavby |
OBEC NEMOJOV
| Název stavby: |
Snížení energetické náročnosti objetku č.p.11 |
| Místo stavby: | Nemojov |
| Zpracování: | 2023 |
| Zastavěná plocha: | 470 m2 |
| Obestavěný prostor: | 3 710 m3 |
| Stupeň: | Dokumentace pro vydání společného povolení stavby |
J4 s.r.o.
| Název stavby: | FOTOFOLTAICKÁ ELEKTRÁRNA |
| Místo stavby: | Předměřice nad Labem |
| Zpracování: | 2023 |
| Instalovaný výkon: | 99,96 kWp |
| Stupeň: | Dokumentace pro vydání společného povolení stavby Dokumentace pro realizaci stavby |
FARMET OFT ESTATE S.R.O.
| Název stavby: | NOVÝ ZÁVOD FARMET – JIH – I.ETAPA |
| Místo stavby: | Česká Skalice |
| Zpracování: | 2023 |
| Zastavěná plocha: | 4 600m2 |
| Obestavěný prostor: | 43 475 m3 |
| Stupeň: | Studie – investiční záměr |
MĚSTO JAROMĚŘ
| Název stavby: | Mateřská škola Jaroměř – navýšení kapacit Přístavba MŠ Na Zavadilce |
| Místo stavby: | Jaroměř |
| Zpracování: | 2023 |
| Zastavěná plocha: | 485 m2 |
| Obestavěný prostor: | 4 010 m3 |
| Stupeň: | Dokumentace pro vydání společného povolení stavby |
ZBYNĚK RULEC
| Název stavby: | NOVOSTAVBU SKLADOVÉ HALY S MOŽNOSTÍ GARÁŽOVÁNÍ VOZIDEL |
| Místo stavby: | Svijanský Újezd |
| Zpracování: | 2023 |
| Zastavěná plocha: | 660 m2 |
| Obestavěný prostor: | 3 770 m3 |
| Stupeň: | Dokumentace pro vydání společného povolení stavby Dokumentace pro realizaci stavby |
ALUFRONT s.r.o.
| Název stavby: | Trafostanice pro FVE Brdce – Jaroměř |
| Místo stavby: | Jaroměř |
| Zpracování: | 2023 |
| Zastavěná plocha: | 58 m2 |
| Obestavěný prostor: | 15 m3 |
| Stupeň: | Dokumentace pro provedení stavby |
UZENÁŘSTVÍ PETRÁSEK
| Název stavby: | SKLAD ZELENINY A ZEMĚDĚLSKÝCH KOMODIT |
| Místo stavby: | Dolní Vlčkovice |
| Zpracování: | 2023 |
| Zastavěná plocha: | 475 m2 |
| Obestavěný prostor: | 2 265 m3 |
| Stupeň: | Dokumentace pro společné povolení stavby |
PŘÍSTAVBA K RODINNÉMU DOMU
| Název stavby: | PŘÍSTAVBA K RODINNÉMU DOMU |
| Místo stavby: | Nemojov |
| Zpracování: | 2023 |
| Zastavěná plocha: | 123 m2 |
| Obestavěný prostor: | 520 m3 |
| Stupeň: | Dokumentace pro společné povolení stavby |
TRUHLÁŘSTVÍ URBAN s.r.o.
| Název stavby: | Změna užívání a stavební úpravy bývalé opravny vozidel – nová truhlárna |
| Místo stavby: | Česká Skalice |
| Zpracování: | 2023/2024 |
| Zastavěná plocha: | 1 475 m2 |
| Obestavěný prostor: | 8 025 m3 |
| Stupeň: | Dokumentace pro společné povolení stavby |
JUTA07 ŽIRECKÁ PODSTRÁŇ
|
Název stavby: |
FOTOFOLTAICKÁ ELEKTRÁRNA |
|
Místo stavby: |
Dvůr Králové nad Labem – Žirecká Podstráň |
|
Zpracování: |
2022 |
|
Instalovaný výkon |
2050 kWp |
|
Stupeň: |
Dokumentace pro společné povolení stavby |
KOTELNA DVŮR KRÁLOVÉ NAD LABEM
|
Název stavby: |
Výstavba horkovodního zdroje v TDK – kotelna na biomasu |
|
Místo stavby: |
Dvůr Králové nad Labem |
|
Zpracování: |
2022/2023 |
|
Zastavěná plocha: |
420 m 2 |
|
Obestavěný prostor: |
6150 m 3 |
|
Stupeň: |
Dokumentace pro provedení stavby |
POSKLIZŇOVÁ LINKA
|
Název stavby: |
Rozšíření stávajícího zemědělského areálu, posklizňová linka |
|
Místo stavby: |
Horní Vlčkovice |
|
Zpracování: |
2022 |
|
Zastavěná plocha: |
1200 m 2 |
|
Obestavěný prostor: |
9000 m 3 |
|
Stupeň: |
Dokumentace pro společné povolení stavby |
JUTA01 – DVŮR KRÁLOVÉ NAD LABEM
|
Název stavby: |
FOTOFOLTAICKÁ ELEKTRÁRNA |
|
Místo stavby: |
Dvůr Králové nad Labem |
|
Zpracování: |
2022 |
|
Instalovaný výkon |
1750 kWp |
|
Stupeň: |
Dokumentace pro společné povolení stavby |
JUTA – JAROMĚŘ
|
Název stavby: |
FOTOFOLTAICKÁ ELEKTRÁRNA |
|
Místo stavby: |
Jaroměř |
|
Zpracování: |
2022 |
|
Instalovaný výkon |
400 kWp |
|
Stupeň: |
Dokumentace pro společné povolení stavby |
MŠ RYCHNOVEK
|
Název stavby: |
REKONSTRUKCE KUCHYNĚ V MŠ RYCHNOVEK |
|
Místo stavby: |
Rychnovek |
|
Zpracování: |
2022 |
|
Stupeň: |
Dokumentace pro provedení stavby |
JUTA17 DVŮR KRÁLOVÉ NAD LABEM
JUTA01 DVŮR KRÁLOVÉ NAD LABEM
JUTA A.S. ÚPICE
| Název stavby: | SO32 – Výrobní hala převíjení |
| Místo stavby: | Úpice |
| Zpracování: | 2021 |
| Zastavěná plocha: | 6450 m 2 |
| Obestavěný prostor: | 78600 m 3 |
| Stupeň: | Dokumentace pro společné povolení stavby Dokumentace pro provádění stavby |
JUTA A.S. DVŮR KRÁLOVÉ NAD LABEM
| Název stavby: | Rozšíření přístřešku u expediční haly SO11 |
| Místo stavby: | Dvůr Králové nad Labem |
| Zpracování: | 2021 |
| Zastavěná plocha: | 360 m 2 |
| Obestavěný prostor: | 2600 m 3 |
| Stupeň: | Dokumentace pro společné povolení stavby Dokumentace pro provádění stavby |
BYTOVÝ DŮM JAROMĚŘ
| Název stavby: | Bytový dům o 8 B.J. |
| Místo stavby: | Jaroměř |
| Zpracování: | 2021 |
| Zastavěná plocha: | 250 m 2 |
| Obestavěný prostor: | 3100 m 3 |
| Stupeň: | Dokumentace pro společné povolení stavby |
JUTA A.S. AREÁL ŽIRECKÁ PODSTRÁŇ
| Název stavby: | Objízdná komunikace s nakládacími rampami u skladové haly SO37 |
| Místo stavby: | Dvůr Králové nad Labem – Žirecká Podstráň |
| Zpracování: | 2021 |
| Zastavěná plocha: | 3000 m 2 + 4150 m 2 |
| Obestavěný prostor: | 48000 m 3 |
| Stupeň: | Změna stavby před dokončením Dokumentace pro provedení stavby |
JUTA A.S. ADAMOV
| Název stavby: | SO03 – Výrobní hala |
| Místo stavby: | Adamov u Trutnova |
| Zpracování: | 2021 |
| Zastavěná plocha: | 1350 m 2 |
| Obestavěný prostor: | 17300 m 3 |
| Stupeň: | Dokumentace pro společné povolení stavby Dokumentace pro provedení stavby |
ZÁZEMÍ PRO EXPEDIČNÍ FIRMU
| Název stavby: | Zázemí expediční firmy |
| Místo stavby: | Česká Skalice |
| Zpracování: | 2021 |
| Zastavěná plocha: | 500 m 2 |
| Obestavěný prostor: | 47 600 m 3 |
| Studie: | Studie Dokumentace pro společné povolení stavby |
JUTA SLOVENSKO
| Název stavby: | Skladový a prodejní sklad |
| Místo stavby: | Slovensko |
| Zpracování: | 2021 |
| Zastavěná plocha: | 1450 m 2 |
| Obestavěný prostor: | 15000 m 3 |
| Studie: | Studie |
JUTA A.S. JAROMĚŘ
| Název stavby: | Přemístění trafostanice a přeložka VN |
| Místo stavby: | Jaroměř |
| Zpracování: | 2021 |
| Zastavěná plocha: | 65 m 2 |
| Obestavěný prostor: | 360 m 3 |
| Stupeň: | Dokumentace pro společné povolení stavby Dokumentace pro provedení stavby |
JUTA A.S. AREÁL JAROMĚŘ
| Název stavby: | Odstranění souboru staveb v místě výrobní haly SO28 |
| Místo stavby: | Jaroměř |
| Zpracování: | 2021 |
| Zastavěná plocha: | 4850 m 2 |
| Obestavěný prostor: | 36400 m 3 |
| Stupeň: | Dokumentace pro odstranění stavby |
JUTA A.S. AREÁL ŽIREČ
| Název stavby: | Využití odpadního tepla z kompresorové stanice |
| Místo stavby: | Žirecká Podstráň |
| Zpracování: | 2021 |
| Stupeň: | Dokumentace pro odstranění stavby |
JUTA A.S. ÚPICE
| Název stavby: | Demolice objektů bývalé mateřské školky |
| Místo stavby: | Úpice |
| Zpracování: | 2021 |
| Zastavěná plocha: | 1250 m 2 |
| Obestavěný prostor: | 5750 m 3 |
| Stupeň: | Dokumentace pro odstranění stavby |
JUTA A.S. AREÁL ŽIRECKÁ PODSTRÁŇ
| Název stavby: | SO61 – Vrátnice u hlavního parkoviště |
| Místo stavby: | Dvůr Králové nad Labem – Žirecká Podstráň |
| Zpracování: | 2020 |
| Zastavěná plocha: | 390 m 2 |
| Obestavěný prostor: | 2200 m 3 |
| Stupeň: | Dokumentace pro společné povolení stavby Dokumentace pro provádění stavby |
| Spolupracoval: | Ing. arch. Jakub Hlaváč, MgA. Zdeněk Novák |
JUTA A.S. ZÁVOD 07
| Název stavby: | SO37 – Skladová hala |
| Místo stavby: | Dvůr Králové nad Labem – Žirecká Podstráň |
| Zpracování: | 2020 |
| Zastavěná plocha: | 3600 m 2 |
| Obestavěný prostor: | 44560 m 3 |
| Stupeň: | Dokumentace pro společné povolení stavby Dokumentace pro provádění stavby |
JENDACARS
| Název stavby: | Novostavba autoservisu |
| Místo stavby: | Česká Skalice |
| Zpracování: | 2020 |
| Zastavěná plocha: | 750m 2 |
| Obestavěný prostor: | 4600 m 3 |
| Stupeň: | Změna stavby před dokončením |
JUTA A.S. AREÁL ŽIRECKÁ PODSTRÁŇ
| Název stavby: | Centrální parkoviště pro nákladní a osobní vozidla |
| Místo stavby: | Dvůr Králové nad Labem – Žirecká Podstráň |
| Zpracování: | 2020 |
| Zastavěná plocha: | Živičný povrch 4800 m 2 Dlážděný povrch 4700 m 2 |
| Obestavěný prostor: | – |
| Stupeň: | Dokumentace změny stavby před dokončením Dokumentace pro provádění stavby |
| Vizualizace: | Ing. arch. Jakub Hlaváč |
JUTA A.S. ZÁVOD 04
| Název stavby: | Odstranění souboru objektů v místě budoucí skladové haly SO27 |
| Místo stavby: | Jaroměř |
| Zpracování: | 2020 |
| Zastavěná plocha: | 2660 m 2 |
| Obestavěný prostor: | 18450 m 3 |
| Stupeň: | Dokumentace odstranění stavby |
BEAS, A.S.
| Název stavby: | Přípojky objektu SO01, SO02 a SO03 |
| Místo stavby: | Bývalý vojenský areál Jaroměř – Josefov |
| Zpracování: | 2020 |
| Zastavěná plocha: | – |
| Obestavěný prostor: | – |
| Stupeň: | Dokumentace územní souhlas |
MĚSTO JAROMĚŘ
| Název stavby: | Doplnění veřejného osvětlení v ulici Rybalkova |
| Místo stavby: | Jaroměř |
| Zpracování: | 2020 |
| Zastavěná plocha: | – |
| Obestavěný prostor: | – |
| Stupeň: | Dokumentace územní souhlas |
JUTA A.S. ZÁVOD 01
| Název stavby: | SO38 – Závodní jídelna a dílna údržby |
| Místo stavby: | Dvůr Králové nad Labem |
| Zpracování: | 2019 |
| Zastavěná plocha: | 840 m 2 |
| Obestavěný prostor: | 9 520 m 3 |
| Stupeň: | Dokumentace pro společné povolení stavby Dokumentace pro provedení stavby |
JUTA A.S. ZÁVOD 17
| Název stavby: | Výrobní hala SO21 |
| Místo stavby: | Dvůr Králové nad Labem |
| Zpracování: | 2019 |
| Zastavěná plocha: | 3 257 m 2 |
| Obestavěný prostor: | 32 069 m 3 |
| Stupeň: | Dokumentace pro společné povolení stavby Dokumentace pro provedení stavby |
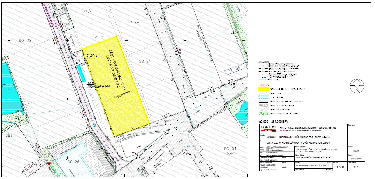
JUTA A.S. ZÁVOD 17
| Název stavby: | Odstranění části výrobní haly SO21 |
| Místo stavby: | Dvůr Králové nad Labem |
| Zpracování: | 2019 |
| Zastavěná plocha: | 2 690 m 2 |
| Obestavěný prostor: | 22 120 m 3 |
| Stupeň: | Dokumentace odstranění stavby |
JUTA A.S. ZÁVOD 15
| Název stavby: | Přístavba skladové haly SO50 |
| Místo stavby: | Dvůr Králové nad Labem – Žirecká Podstráň |
| Zpracování: | 2019 |
| Zastavěná plocha: | 3 190 m 2 |
| Obestavěný prostor: | 38 210 m 3 |
| Stupeň: | Dokumentace pro společné povolení stavby Dokumentace pro provádění stavby |
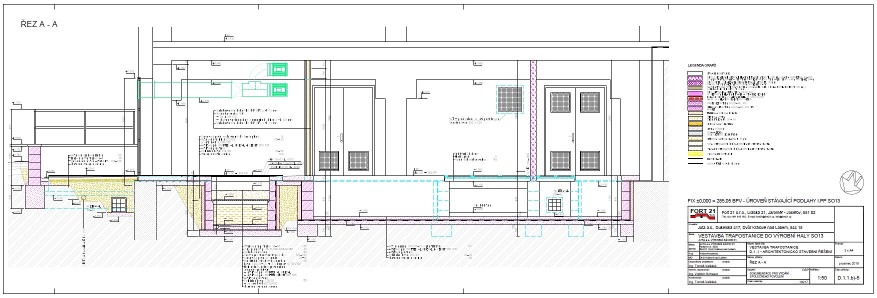
JUTA A.S. ZÁVOD 01
| Název stavby: | Vestavba trafostanice do objektu SO13 |
| Místo stavby: | Dvůr Králové nad Labem |
| Zpracování: | 2019 |
| Zastavěná plocha: | 92 m 2 |
| Obestavěný prostor: | 430 m 3 |
| Stupeň: | Dokumentace pro společné povolení stavby Dokumentace pro provádění stavby |
JUTA A.S. ZÁVOD 12
| Název stavby: | Přístavba skladové haly SO12 |
| Místo stavby: | Bohuslavice nad Úpou – Adamov |
| Zpracování: | 2019 |
| Zastavěná plocha: | 1 580 m 2 |
| Obestavěný prostor: | 15 950 m 3 |
| Stupeň: | Dokumentace pro společné povolení stavby Dokumentace pro provádění stavby |
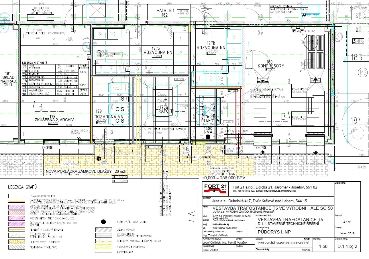
JUTA A.S. ZÁVOD 15
| Název stavby: | Vestavba trafostanice T5 ve výrobní hale SO50 |
| Místo stavby: | Dvůr Králové nad Labem – Žirecká Podstráň |
| Zpracování: | 2019 |
| Zastavěná plocha: | 60 m 2 |
| Obestavěný prostor: | 255 m 3 |
| Stupeň: | Dokumentace pro společné povolení stavby Dokumentace pro provádění stavby |
NOVOSTAVBA AUTOSERVISU
| Název stavby: | NOVOSTAVBA AUTOSERVISU |
| Místo stavby: | Česká Skalice |
| Zpracování: | 2019 |
| Zastavěná plocha: | 610 m 2 |
| Obestavěný prostor: | 3 870 m 3 |
| Stupeň: | Dokumentace pro společné povolení stavby |
JUTA A.S. ZÁVOD 04
| Název stavby: | VÝROBNÍ HALA SO26 |
| Místo stavby: | Jaroměř |
| Zpracování: | 2019 |
| Zastavěná plocha: | 3 080 m 2 |
| Obestavěný prostor: | 45 160 m 3 |
| Stupeň: | Dokumentace pro územní řízení |
| Spolupracoval: | Ing. Arch. Jakub Hlaváč |
JUTA A.S. ZÁVOD 07
| Název stavby: | SKLADOVÁ HALA SO35 S EXPEDIČNÍM ZÁZEMÍM |
| Místo stavby: | Dvůr Králové nad Labem – Žirecká Podstráň |
| Zpracování: | 2018 |
| Zastavěná plocha: | 4 960 m 2 |
| Obestavěný prostor: | 47 025 m 3 |
JUTA A.S. ZÁVOD 01
| Název stavby: | SKLADOVÁ HALA SO37 VČETNĚ EXPEDICE |
| Místo stavby: | Dvůr Králové nad Labem |
| Zpracování: | 2018 |
| Zastavěná plocha: | 3 275 m2 |
| Obestavěný prostor: | 35 050 m3 |
JUTA A.S. ZÁVOD 02
| Název stavby: | SKLADOVÁ A EXPEDIČNÍ HALA SO31 |
| Místo stavby: | Úpice |
| Zpracování: | 2017 |
| Zastavěná plocha: | 6 600 m2 |
| Obestavěný prostor: | 60 600 m3 |
JUTA A.S. ZÁVOD 12
| Název stavby: | SKLADOVÁ HALA S EXPEDIČNÍM ZÁZEMÍM |
| Místo stavby: | Bohuslavice nad Úpou – Adamov |
| Zpracování: | 2017 |
| Zastavěná plocha: | 800 m2 |
| Obestavěný prostor: | 7 700 m3 |
JUTA A.S. ZÁVOD 02
| Název stavby: | ZASTROPENÍ NÁHONU |
| Místo stavby: | Úpice |
| Zpracování: | 2017 |
| Zastavěná plocha: | 1 000 m 2 |
RODINNÝ DŮM – NEMOJOV
| Název stavby: | RODINNÝ DŮM O 1 B.J. |
| Místo stavby: | Nemojov |
| Zpracování: | 2017 |
| Zastavěná plocha: | 150 m2 |
| Obestavěný prostor | 1 000 m3 |
JUTA A.S. ZÁVOD 17
| Název stavby: | VÝROBNÍ HALA SO28 VČETNĚ ZÁZEMÍ |
| Místo stavby: | Dvůr Králové nad Labem |
| Zpracování: | 2016 |
| Zastavěná plocha: | 8 900 m2 |
| Obestavěný prostor | 95 800 m3 |
JUTA A.S. ZÁVOD 01
| Název stavby: | SKLADOVÁ HALA SO33 VČETNĚ EXPEDICE |
| Místo stavby: | Dvůr Králové nad Labem |
| Zpracování: | 2016 |
| Zastavěná plocha: | 4 700 m2 |
| Obestavěný prostor | 45 050 m3 |
JUTA A.S. ZÁVOD 02
| Název stavby: | OCELOVÝ PŘÍSTŘEŠEK NA VÁLY |
| Místo stavby: | Úpice |
| Zpracování: | 2016 |
| Zastavěná plocha: | 1 550 m2 |
| Obestavěný prostor | 12 500 m3 |
RODINNÝ DŮM – HABŘINA
| Název stavby: | RODINNÝ DŮM O 1 B.J. |
| Místo stavby: | Habřina |
| Zpracování: | 2016 |
| Zastavěná plocha: | 156 m 2 |
| Obestavěný prostor | 815 m 3 |
JUTA A.S. ZÁVOD 01
| Název stavby: | PŘÍSTAVBA KANCELÁŘÍ U SPOJOVACÍHO KRČKU SO10.2 |
| Místo stavby: | Dvůr Králové nad Labem |
| Zpracování: | 2016 |
| Zastavěná plocha: | 300 m2 |
| Obestavěný prostor: | 1 430 m3 |
JUTA A.S. ZÁVOD 02
| Název stavby: | NOVÁ VÝMĚNÍKOVÁ STANICE ZÁVODU 02 |
| Místo stavby: | Úpice |
| Zpracování: | 2016 |
| Instalovaný výkon: | 2 MW |
JUTA A.S. ZÁVOD 10
| Název stavby: | PŘÍSTAVBA SKLADOVÉ HALY VČETNĚ EXPEDICE |
| Místo stavby: | Olomouc |
| Zpracování: | 2015 |
| Zastavěná plocha: | 1 550 m 2 |
| Obestavěný prostor | 10 900 m 3 |
JUTA A.S. ZÁVOD 02
| Název stavby: | TRAFOSTANICE TR2 |
| Místo stavby: | Úpice |
| Zpracování: | 2015 |
| Zastavěná plocha: | 100 m 2 |
| Obestavěný prostor | 500 m 3 |
JUTA A.S. ZÁVOD 02
| Název stavby: | PŘÍSTAVBA VÝROBNÍ HALY SO30 VČETNĚ ADMINISTRATIVNÍHO ZÁZEMÍ |
| Místo stavby: | Úpice |
| Zpracování: | 2015 |
| Zastavěná plocha: | 2 650 m 2 |
| Obestavěný prostor | 21 700 m 3 |
JUTA A.S. ZÁVOD 10
| Název stavby: | STAVEBNÍ ÚPRAVY STÁVAJÍCÍ SKLADOVÉ HALY SO13 |
| Místo stavby: | Olomouc |
| Zpracování: | 2015 |
| Zastavěná plocha: | 2 750 m 2 |
| Obestavěný prostor | 17 050 m 3 |
RODINNÝ DŮM – SVINIŠŤANY
| Název stavby: | RODINNÝ DŮM O 1 B.J. |
| Místo stavby: | Svinišťany |
| Zpracování: | 2015 |
| Zastavěná plocha: | 320 m 2 |
| Obestavěný prostor | 1 550 m 3 |
JUTA A.S. ZÁVOD 02
| Název stavby: | PŘÍSTAVBA A NÁSTAVBA EXPEDICE |
| Místo stavby: | Úpice |
| Zpracování: | 2015 |
| Zastavěná plocha: | 170 m 2 |
| Obestavěný prostor | 1 240 m 3 |
RODINNÝ DŮM – DVŮR KRÁLOVÉ NAD LABEM
| Název stavby: | RODINNÝ DŮM O 1 B.J. |
| Místo stavby: | Dvůr Králové nad Labem |
| Zpracování: | 2015 |
| Zastavěná plocha: | 210 m 2 |
| Obestavěný prostor | 1 060 m 3 |
JUTA A.S. ZÁVOD 01
| Název stavby: | SKLAD ŠABLON – PŘÍSTAVBA HALY SO01 |
| Místo stavby: | Dvůr Králové nad Labem |
| Zpracování: | 2015 |
| Zastavěná plocha: | 60 m2 |
| Obestavěný prostor | 450 m3 |
JUTA A.S. ZÁVOD 15
| Název stavby: | HALA EXPEDICE S PŘÍSTAVBOU ADMINISTRATIVNÍHO ZÁZEMÍ |
| Místo stavby: | Dvůr Králové nad Labem – Žirecká Podstráň |
| Zpracování: | 2014 |
| Zastavěná plocha: | 1 700 m2 |
| Obestavěný prostor | 19 350 m3 |
JUTA A.S. ZÁVOD 01
| Název stavby: | OCELOVÁ PODESTA PRO TECHNOLOGICKÉ ZAŘÍZENÍ |
| Místo stavby: | Dvůr Králové nad Labem |
| Zpracování: | 2014 |
JUTA A.S. ZÁVODY 07, 14, 15
| Název stavby: | AREÁLOVÁ ČOV PRO 150 EO |
| Místo stavby: | Dvůr Králové nad Labem – Žirecká Podstráň |
| Zpracování: | 2014 |
| Zastavěná plocha: | 25 m2 |
| Obestavěný prostor | 192 m 3 |
JUTA A.S. ZÁVOD 07
| Název stavby: | SKLADOVÁ HALA SO35 S EXPEDIČNÍM ZÁZEMÍM |
| Místo stavby: | Dvůr Králové nad Labem – Žirecká Podstráň |
| Zpracování: | 2013 |
| Zastavěná plocha: | 5 000 m 2 |
| Obestavěný prostor | 47 350 m 3 |
JUTA A.S. ZÁVOD 11
| Název stavby: | NÁSTAVBA KONSTRUKČNÍ KANCELÁŘE |
| Místo stavby: | Dvůr Králové nad Labem |
| Zpracování: | 2013 |
| Zastavěná plocha: | 85 m 2 |
| Obestavěný prostor | 335 m 3 |
JUTA A.S. ZÁVOD 01
| Název stavby: | SKLADOVÁ HALA S EXPEDIČNÍM ZÁZEMÍM |
| Místo stavby: | Dvůr Králové nad Labem |
| Zpracování: | 2012 |
| Zastavěná plocha: | |
| Obestavěný prostor | 45 550 m3 |
JUTA A.S. ZÁVOD 06
| Název stavby: | REKONTRUKCE VYTÁPĚNÍ CELÉHO ZÁVODU |
| Místo stavby: | Višňová |
| Zpracování: | 2012 |
| Instalovaný výkon: |
JUTA A.S. ZÁVOD 12
| Název stavby: | VÝROBNÍ HALA SO07 VČETNĚ ADMINISTRATIVNÍHO ZÁZEMÍ |
| Místo stavby: | Bohuslavice nad Úpou – Adamov |
| Zpracování: | 2011 |
| Zastavěná plocha: | |
| Obestavěný prostor: |
JUTA A.S. ZÁVOD 10
| Název stavby: | SKLADOVÉ HOSPODÁŘSTVÍ VČETNĚ ADMINISTRATIVNÍHO ZÁZEMÍ |
| Místo stavby: | Olomouc |
| Zpracování: | 2011 |
| Zastavěná plocha: | |
| Obestavěný prostor: |
JUTA A.S. ZÁVOD 15
| Název stavby: | VÝROBNÍ HALA SO50 – II.ETAPA |
| Místo stavby: | Dvůr Králové nad Labem – Žirecká Podstráň |
| Zpracování: | 2011 |
| Zastavěná plocha: | |
| Obestavěný prostor: |
JUTA A.S. ZÁVOD 02
| Název stavby: | SKLADOVÁ HALA SO20 VČETNĚ EXPEDICE |
| Místo stavby: | Úpice |
| Zpracování: | 2010 |
| Zastavěná plocha: | |
| Obestavěný prostor: |
JUTA A.S. ZÁVOD 15
| Název stavby: | VÝROBNÍ HALA SO50 – I.ETAPA |
| Místo stavby: | Dvůr Králové nad Labem – Žirecká Podstráň |
| Zpracování: | 2010 |
| Zastavěná plocha: | |
| Obestavěný prostor: |
JUTA A.S. ZÁVODY 07, 14, 15
| Název stavby: | VÝSTAVBA AREÁLU ŽIREČ |
| Místo stavby: | Dvůr Králové nad Labem – Žirecká Podstráň |
| Zpracování: | 2006-2009 |